MV

オフィスレイアウトなら
お任せください

  1. オフィスバスターズは小規模オフィスから大規模オフィスまで対応いたしております。

  2. 完成後のイメージは、平面図やパースなどでご確認いただけます。

オフィスバスターズのオフィスレイアウト
ココがメリット

01

年間2,000件
という安心の実績

02

経験豊富な
プロのデザイナー・設計士が
機能性の高い
オフィスレイアウトプランを作成

03

最短1週間以内で
レイアウト作成
*時期により変動がございます

Type of office layout

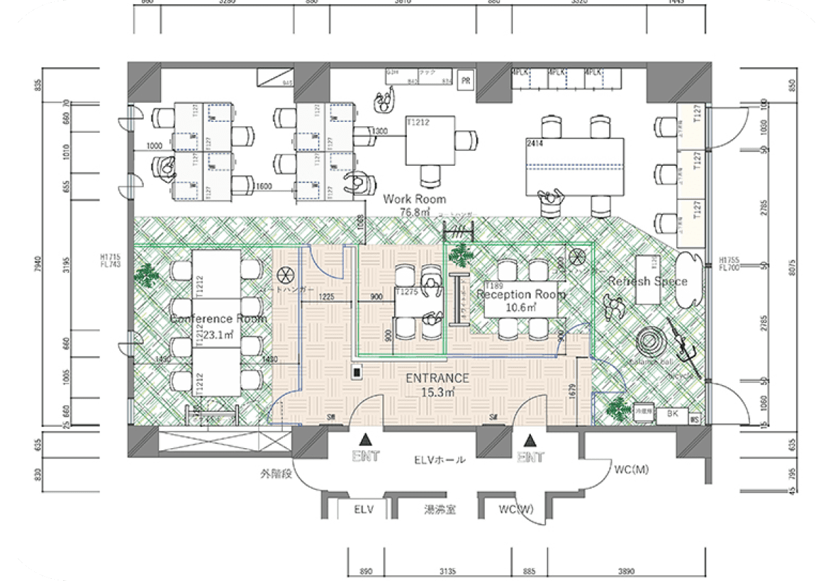
オフィスレイアウト事例

オフィスレイアウトのポイント

お客様のご要望をもとに、エントランス、執務室、会議室の位置や広さを決め、
動線を考慮した上で最適な配置をご提案いたします。
完成後のイメージは、平面図うあ3Dパースなどでご確認いただけます。
レイアウトのパターンは、現在ご使用のオフィス家具流用パターン、
新規家具を想定したパターン、
さらに、ソーシャルディスタンスの確保や、
WEBミーティングを想定した集中ブースを取り入れたパターンなど、
様々なオフィスレイアウトプランのご提案が可能です。

オフィスの規模や形状に合わせて
レイアウトを作成

人数やご予算に応じた
レイアウトを提案

建築基準法や
消防法も考慮

執務室・会議室・エントランスの
広さや数などの要望に対応

坪数 30坪以下

業種:法律事務所  
坪数:27坪  社員数:12人

法律事務所の職員の方は、多くの書類を扱うため広いデスクが必要とのことでした。
そこで、必要に応じてデスク脇に袖机を置き、スペースを広げるご提案をしました。
さらに、集中を要する業務なので、デスクの間にローパーテーションを配置しました。
クライアントとの面談のための会議室はエントランスから直接入れるように設計し、機密保持のため、職員以外の方がオフィス内に立ち入ることがないようにしました。

坪数 31〜50坪

業種:IT企業  
坪数:36坪  社員数:18人

勤務時間が長くなりがちな、IT企業様からのご依頼でした。
健康維持のために話題のスタンディングワークを希望されている方もおられるとのことで、壁際に昇降デスクを導入しました。
休憩時間には、社員の方がバランスボールやエアロバイクなどで体を動かせるリフレッシュスペースを作りたいというご要望をいただき、広いスペースを取りました。
また、クライアントとの打ち合わせも多いということで、執務室内のミーティングスペースとは別に会議室を2つご用意しました。

坪数 51〜100坪

業種:設計事務所  
坪数:90坪  社員数:40人

設計という仕事柄、現場に出るために靴や服を着替える更衣室が必要なケースでした。
そこで、レイアウト面では更衣室を必要とする従業員用の入口と、来客が利用するエントランスを分ける設計にし、従業員と来客の導線を分けました。
オフィス什器は、デザインにこだわりのないロッカーやシューズボックス、書庫を中古でそろえるご提案をし、ご予算内におさめる工夫をしました。

納期に自信あり

時期にもよりますが、お客様のオフィスサイズを計測後
1週間以内*に簡易レイアウトを作成致します。
*時期により変動がございます

よくあるご質問

Q

レイアウト作成にはどれくらい時間がかかりますか?

A

時期にもよりますがお客様のオフィスサイズを計測してから最短1週間以内に簡易レイアウトを作成致します。

Q

レイアウト作成の費用はどれくらいでしょうか?

A

無料にて作成させて頂きます。

Q

レイアウト作成には何が必要でしょうか?

A

お客様ご自身で特別準備して頂く事はございません。
担当者よりご希望のゾーニング等をヒアリングをさせて頂きますのでお申し付けくださいませ。

Go To Top

お見積りのご依頼や、ご不明点のお問い合わせは
こちらのフォームよりお気軽にどうぞ!
経験豊かなスタッフが丁寧にお答えいたします。

お問い合わせフォーム

    お問い合わせ項目

    オフィスの地域

    ご希望の納入時期

    オフィスの面積

    オフィスの利用者数

    会社名

    お名前

    電話番号

    メールアドレス

    問い合わせ内容